Menu

Weekend Villa Pawna, Maharashtra


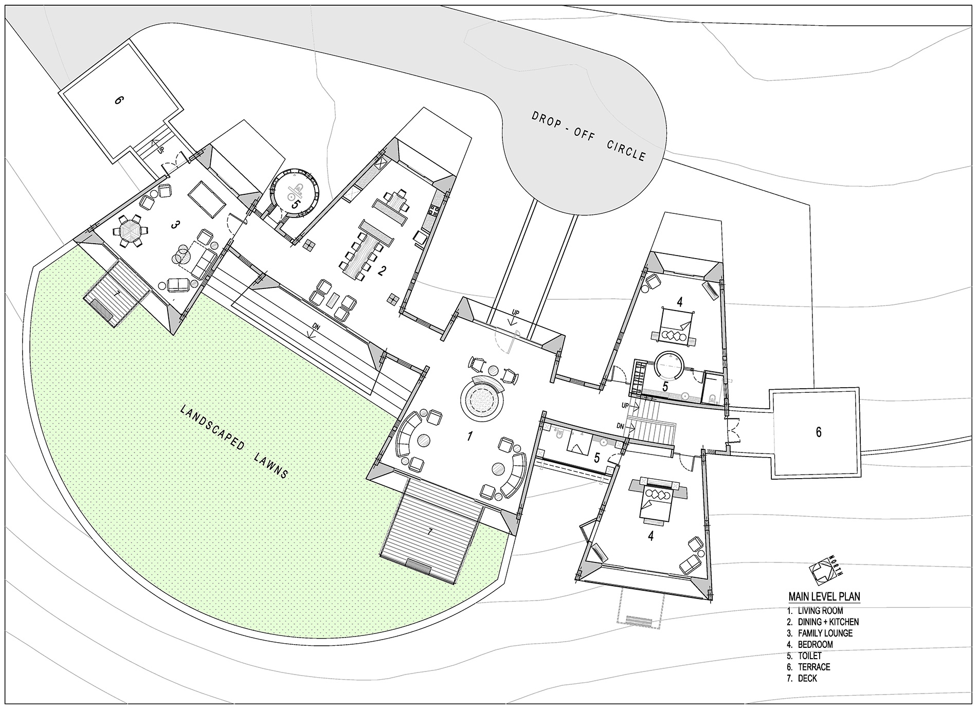
Perched on the Amarja Hills in Pawna, this weekend house is conceived as a cluster of cuboids.

With each space devised as a 'trapezoid' both in plan and section. These cuboids are placed like dice, negotiating contours, whilst also providing unique views of the surrounding lake and mountains.


Project Facts + Design Team

Year of Completion

2017

Design Team

Nitin Killawala, Ketan Mistry

Structural Engineers

Shanghavi & Associates Pvt Ltd.

Landscape

AMS Consultants

Client

Desai Family

Location

Pawna, Maharashtra

Project Area

5,500 sqft.